خدمات مميزة تقدم لك علي اعلي مستوي
01/5
خدمة إدارة المشاريع (طرف ثالث)
خدمة إدارة المشروعات من طرف ثالث هي آلية رقابية واستشارية يتم فيها تعيين جهة مستقلة من قبل المالك (شركة احمد التميمي لادارة المشروعات ) لمتابعة وتدقيق تنفيذ المشروع، بهدف ضمان الجودة، السلامة، والامتثال للمعايير الفنية والقانونية. إليك تفصيلًا شاملً
02/5
خدمة مالك مقاول
هي خدمة تقدمها شركة احمد التميمي عبارة اعطاء الخبرة والفريق والموافقات الرسمية اللازمة للمالاك الذين يرغبون في بناء بيوتهم بدون وجود مقاول بغرض تقليل التكلفة والاستفادة من الميزانية في اغراض اخرى .
03/5
خدمة زيارة الموقع
هي خدمة زيارة الموقع الحالي وتقيم الاعمال في الموقع من فريق الشركة واستخراج الاخطاء والتشيك على الاعمال في الموقع لضمان الجودة والحرفية في العمل
04/5
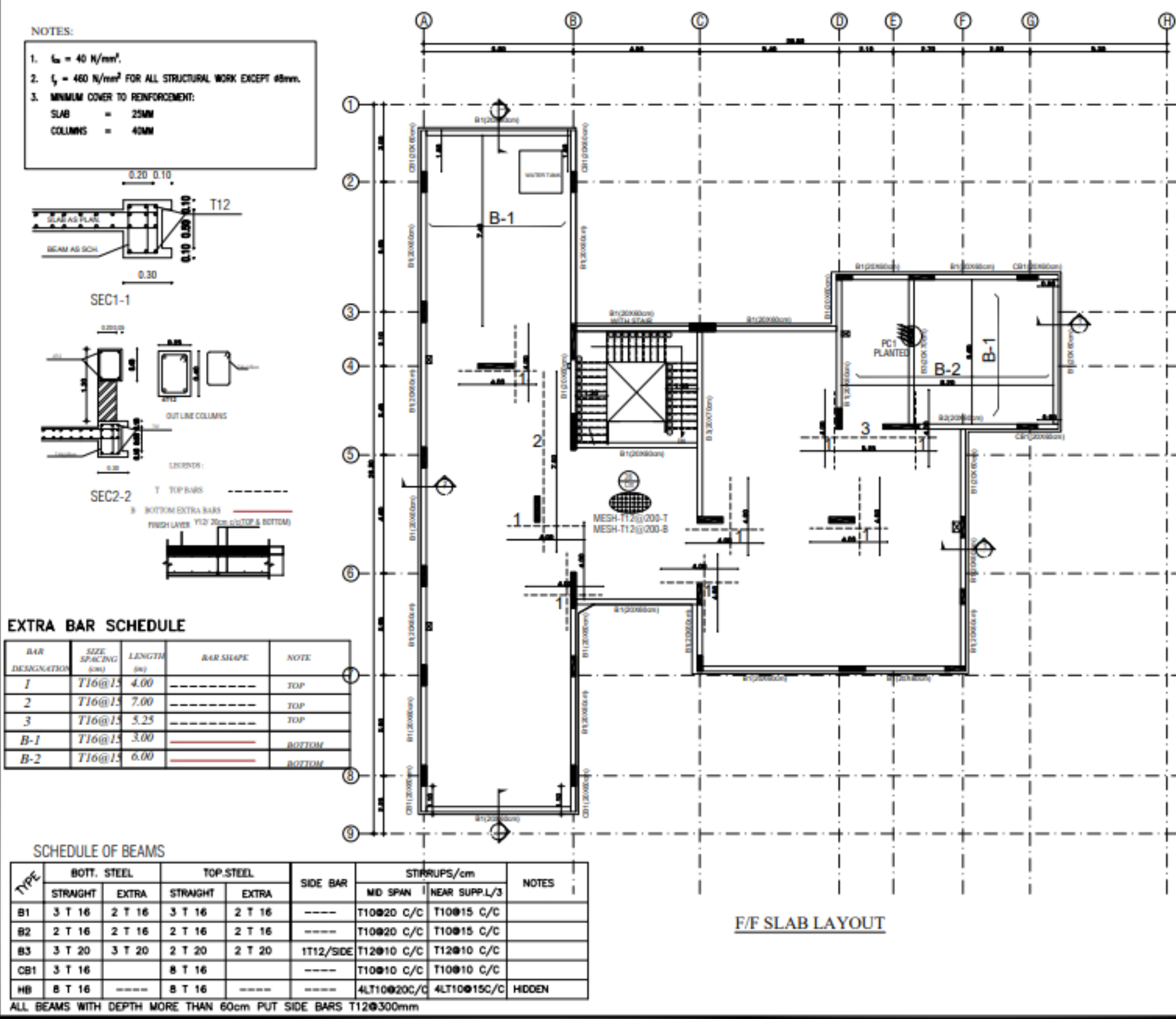
خدمة مراجعة المخططات
هي خدمة دراسة المخطط التي يقوم بتصميمها الاستشاري عبر فريق مختص من المهندسين في شركة احمد التميمي لادارة المشروعات لتلافي اي اخطاء او سوء في التصميم حتى لا يتحول الى مشكلة مستقبلية في المنزل
05/5
خدمة مراجعة جدول الكميات والمواصفات
هي خدمة دراسة جداول الكميات والاسعار التي يقوم باعدادها المقاول للمالك ويقوم فريق المكتب الفني في الشركة بدراسة الاسعار والمواد ومقارنتها مع المخطط واستخراج الاخطاء ان وجدت مع عمل التواصيات التي تساعد المالك على اختيار مقاول مناسب للمشروع
هل لديك مشروع؟ دعنا نناقشه!
شكرًا لتواصلك معنا!
يرجى تعبئة النموذج، ونتمنى لك يومًا رائعًا!